Know more about the duplex barndominium with 5 parking spaces and a ground-floor office. Notice especially the stunning broad-style front façade.
Welcome to our house plans featuring a 2-story 3-bedroom barndominium duplex floor plan. Below are floor plans, additional sample photos, and plan details and dimensions.
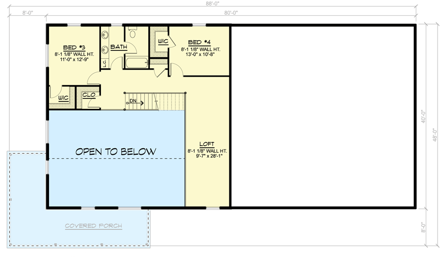
Floor Plan
Main Level
2nd Floor
Additional Floor Plan Images
A two-car garage door in a dark tone is on the front of the home.
A welcoming covered porch area with a grill.
View of the rear entrance of the garage from the large yard.
View of the home’s right side showing two windows and an undecorated wall.
Plan Details
Dimensions
| Width: | 88′ 0″ |
| Depth: | 40′ 0″ |
| Max ridge height: | 25′ 6″ |
Garage
| Type: | RV Garage, Attached |
| Area: | 1600 sq. ft. |
| Count: | 3 Cars |
| Entry Location: | Front |
Ceiling Heights
| First Floor / 9′ 0″ |
|
| Second Floor / 8′ 0″ |
Roof Details
| Framing Type: | Truss |
Dimensions
| Width: | 88′ 0″ |
| Depth: | 40′ 0″ |
| Max ridge height: | 25′ 6″ |
Garage
| Type: | RV Garage, Attached |
| Area: | 1600 sq. ft. |
| Count: | 3 Cars |
| Entry Location: | Front |
Ceiling Heights
| First Floor / 9′ 0″ |
|
| Second Floor / 8′ 0″ |
Roof Details
| Framing Type: | Truss |
View More Details About This Floor Plan
Plan 135083GRA
The footprint of this barndominium is efficient and economical. The front-left corner of the house features a porch that wraps around it and opens on all sides. When you enter, the space has an open floor plan with windows on the top. The enormous kitchen island has seats for a casual supper.
On the main level, there are two bedrooms and a laundry/mudroom off the garage entrance.
Two bedrooms flank the rear of the house upstairs, while a loft looks down on the living area below.
Two bays on the garage side provide front access, and a drive-through is available through an extra-wide door at the back. Corrugated metal siding is specified as the outside finish.






