Explore more about this barndominium-type home with a wraparound porch in the farmhouse style. View the large, well-designed garage with its rustic façade.
Welcome to our house plans featuring a 2-story 3-bedroom farmhouse-inspired barndominium-style house floor plan. Below are floor plans, additional sample photos, and plan details and dimensions.
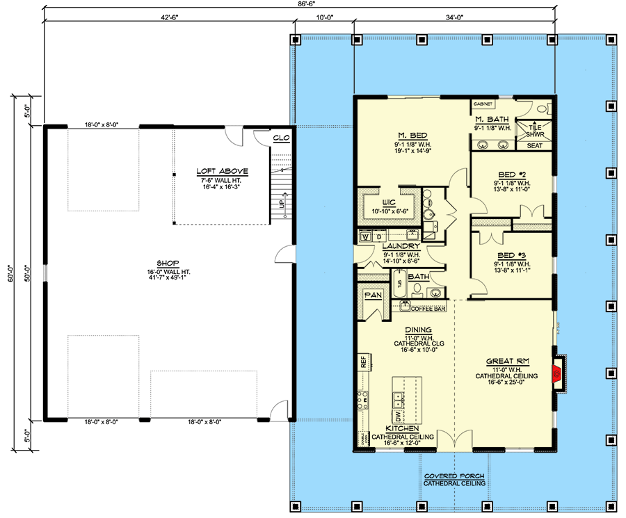
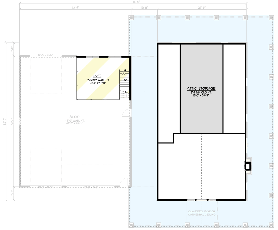
Floor Plan
Main Level
2nd Floor
Additional Floor Plan Images
View of the house’s front in a dark brown rustic style.
The rear of the home has a cozy porch, seating, and a table.
A distant picture of the back of the house reveals a sizable yard and wood fencing.
The garage space has a loft above and tall walls.
A covered porch with a cathedral ceiling style looks gorgeous.
Glass doors and windows with an innovative structure.
The right side of the home has a magnificent stone brick appearance.
Plan Details
Dimensions
| Width: | 96′ 6″ |
| Depth: | 80′ 0″ |
| Max ridge height: | 25′ 8″ |
Garage
| Type: | RV Garage, Attached |
| Area: | 2125 sq. ft. |
| Count: | 3 Cars |
| Entry Location: | Front |
Ceiling Heights
| First Floor / 9′ 0″ |
|
| Second Floor / 8′ 0″ |
Roof Details
| Primary Pitch: | 9 on 12 |
| Secondary Pitch: | 4 on 12 |
| Framing Type: | Truss |
Dimensions
| Width: | 96′ 6″ |
| Depth: | 80′ 0″ |
| Max ridge height: | 25′ 8″ |
Garage
| Type: | RV Garage, Attached |
| Area: | 2125 sq. ft. |
| Count: | 3 Cars |
| Entry Location: | Front |
Ceiling Heights
| First Floor / 9′ 0″ |
|
| Second Floor / 8′ 0″ |
Roof Details
| Primary Pitch: | 9 on 12 |
| Secondary Pitch: | 4 on 12 |
| Framing Type: | Truss |
View More Details About This Floor Plan
Plan 135199GRA
This barndominium-style home plan features a gigantic 2,125 square foot garage shop on the left and a 3-bed, 2,050 square foot farmhouse on the right, both with complete (i.e., 4-sided) wraparound porches. Under a cathedral ceiling, French doors on the wraparound porch lead into a combined great room with fireplace, kitchen with a 5′ by 8′ island, a coffee bar, and dining space. Along the right side are two roomy bedrooms, a complete bathroom, and a laundry room with an entrance to the porch.
A 4-fixture bathroom and a walk-in closet are included in the master bedroom, which is tucked away in the back of the plan. The garage features a separate 2-car space and an RV bay with drive-through access. A 299-square-foot loft that may be used as an office or storage is accessible via stairs. Corrugated metal siding is specified as the outside finish.
Related Plan: Choose a different option with house plans 135072GRA, 135202GRA, 135173GRA, and 135196GRA.









